東武野田線「豊春」駅
徒歩13分(約1,000m)
全3区画
東武野田線「豊春」駅
徒歩13分(約1,000m)
133.26m²(40.31坪)〜
133.95m²(40.52坪)
104.33m²(31.56坪)〜
104.34m²(31.56坪)
|
号 地 |
土地面積 |
建物面積 |
間取り |
販売価格 |
|---|---|---|---|---|
|
1号地 |
133.95m²(40.52坪) |
104.34m²(31.56坪) |
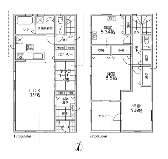
3LDK |
成約済み |
|
2号地 |
133.26m²(40.31坪) |
110.13m²(33.31坪) |
3LDK |
成約済み |
|
3号地 |
132.83m²(40.18坪) |
104.33m²(31.56坪) |
3LDK |
成約済み |
1 |
土地面積/133.95m²(40.52坪) 建物面積/104.34m²(31.56坪) 間取り/3LDK 成約済み |
|---|---|
2 |
土地面積/133.26m²(40.31坪) 建物面積/110.13m²(33.31坪) 間取り/3LDK 成約済み |
3 |
土地面積/132.83m²(40.18坪) 建物面積/104.33m²(31.56坪) 間取り/3LDK 成約済み |
物件詳細情報
情報更新日 2022.02.25
|
物件名 |
早くもラスト1棟!【春日部市下蛭田 新築分譲 (全3棟)】 |
|---|---|
|
交通 |
東武野田線「豊春」駅徒歩13分(約1,000m) |
|
間取り |
3LDK |
|
接道状況 |
南側6.0m公道 |
|
建物面積 |
104.33m²(31.56坪) 〜104.34m²(31.56坪) |
|
土地面積 |
133.26m²(40.31坪) 〜133.95m²(40.52坪) |
|
構造/階建 |
木造 / 2階建 |
|
築年月/築年数 |
2022年1月 (完成予定) |
|
地目 |
宅地 |
|
都市計画 |
市街化区域 |
|
用途地域 |
第一種中高層住居専用地域 |
|
建ぺい率/容積率 |
60/200 |
|
土地権利 |
所有権 |
|
取引態様 |
媒介 |
|
設備条件 |
2階建て, 南向き, 陽当たり良好, LDK18帖以上, LDK15帖以上, 和室, 全居室収納, ウォークインクローゼット, 対面式キッチン, 浄水器, 浴室乾燥機, シャワー付洗面化粧台, TV モニター付インターホン, スマートキー, 都市ガス, 本下水, 駐車2台可, 並列駐車, 庭, 整形地, 閑静な住宅地, スーパー徒歩10分以内 |
|
備考 |
- |
担当者より
担当:大島 卓
同エリアの物件
全1区画
| 所在地 | 埼玉県春日部市中央5丁目8-31 |
|---|---|
| 最寄駅 |
東武伊勢崎線「春日部」駅 徒歩15分 |
| 土地面積 |
70.79m²(21.41坪)
〜 74.41m²(22.51坪) |
| 建物面積 |
81.60m²(24.68坪)
〜 85.86m²(25.97坪) |
販売
価格
3,590
万円〜
月々の
ローン
約
8.4
万円〜
建築中の建物
見学会開催
全1区画
| 所在地 | 埼玉県春日部市一ノ割2丁目1-71 |
|---|---|
| 最寄駅 |
東武伊勢崎線「一ノ割」駅 徒歩7分 |
| 土地面積 |
101.87m²(30.82坪)
〜 102.54m²(31.02坪) |
| 建物面積 |
98.01m²(29.65坪)
〜 100.44m²(30.38坪) |
販売
価格
3,690
万円〜
月々の
ローン
約
8.7
万円〜
建築中の建物
見学会開催
全1区画
| 所在地 | 埼玉県春日部市藤塚1111-7 |
|---|---|
| 最寄駅 |
東武伊勢崎線「一ノ割」駅 徒歩22分(約1760m) |
| 土地面積 | 111.23m²(33.65坪) |
| 建物面積 | 88.80m²(26.86坪) |
販売
価格
3,480
万円
月々の
ローン
約
9.3
万円
建築中の建物
見学会開催