1区画

★2/5 200万円 大幅価格変更★【さいたま市岩槻区本丸1丁目 新築分譲戸建(限定1棟)】 ☆全室南向き☆ヤオコー近い☆岩槻駅徒歩16分岩槻小徒歩7分☆岩槻中徒歩13分☆駐車2台☆

オープンハウス
見学会開催

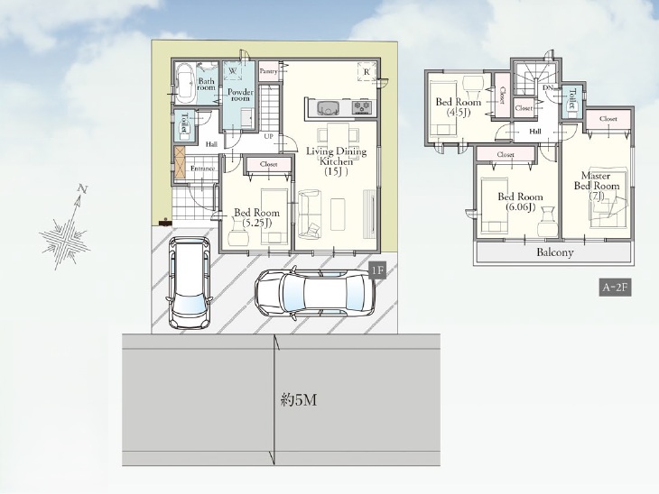
◎LDK(15帖)
◎洋室(5.25帖)
◎洋室(7帖)
◎洋室(6.06帖)
◎洋室(4.5帖)
◎南側バルコニー
◎駐車2台
◎都市ガス・本下水

  • 所在地
    埼玉県さいたま市岩槻区本丸1-17-18
  • 土地面積

    99.76m²(30.18坪)

  • 建物面積

    92.32m²(27.93坪)

  • 販売価格

    3,290

    万円

    月々の
    ローン

    8.9

    万円

現地

現地

現地

区画図 + 間取り図

土地分譲/土地+建物分譲

号 地

土地面積

建物面積

間取り

販売価格

1号地

99.76m²(30.18坪)

92.32m²(27.93坪)

4LDK

3,290万円(税込)

1
号地

土地面積/99.76m²(30.18坪)

建物面積/92.32m²(27.93坪)

間取り/4LDK

販売価格 3,290万円(税込)

周辺環境とアクセス

拡大地図で見る

カーナビ住所

埼玉県さいたま市岩槻区本丸1-17-18

物件詳細情報

情報更新日 2025.10.30

物件名

★2/5 200万円 大幅価格変更★【さいたま市岩槻区本丸1丁目 新築分譲戸建(限定1棟)】

所在地

埼玉県さいたま市岩槻区本丸1-17-18

交通

-

間取り

4LDK

接道状況

価格

3,290万円

建物面積

92.32m²(27.93坪)

土地面積

99.76m²(30.18坪)

構造/階建

木造一戸建

築年月/築年数

- (完成済み)

地目

宅地

都市計画

市街化区域

用途地域

第一種低層住居専用地域

建ぺい率/容積率

60/100

土地権利

所有権

取引態様

媒介

建築確認番号

第HPA-25-12698-1号

設備条件

2階建て, 全室南向き, 南向き, 陽当たり良好, LDK15帖以上, 全居室フローリング, 全居室収納, 対面式キッチン, 浄水器, 浴室乾燥機, シャワー付洗面化粧台, TV モニター付インターホン, 都市ガス, 本下水, 駐車2台可, 整形地, 閑静な住宅地, 小学校徒歩10分以内, スーパー徒歩10分以内

備考

-

担当者より

宅地建物取引士の『川本』です。

『平日、当日、夜遅くからでも内覧したい』にお応えします!
物件情報は毎日、変動します!
お電話が苦手な方はメールやLINEでもお気軽に情報をお届けできます!

新着物件や価格変更はもちろんのこと、予告情報や未公開情報など、
ネットに出てこない貴重な情報もたくさんあります。

新築一戸建て、土地探し、売却査定、住み替え、中古物件探しなどお任せ下さい!
ご希望条件をお聞かせ頂ければ、それに近い物件を
エリア問わず、どの物件でも内覧にご案内します♪

物件ごとに、いちいち業者を変える必要はありません。
スマイッチの『川本』が気になる物件の全てをご案内します!

【住宅ローン 相談例】

☆ 転職してまだ1ヶ月~数ヶ月だけど大丈夫?
☆ 自己資金が0円でも大丈夫?
☆ 年齢的にローンは組める?
☆ いくらまで借りられる?
☆ 月々いくらの支払いになる?
☆ 親子で収入合算できる?
☆ 夫婦で収入合算できる?
☆ 以前、他社でローンが通らなかったけど大丈夫?
☆ 外国籍で永住権ないけどローン通る?

などなど、住宅ローンのアドバイスや事前審査もサポートもできます!
お気軽にお問い合わせください。

また、新築の付帯設備工事見積もり、火災保険見積もりなども一緒に提案できます。

担当:川本 伸隆